Main Menu
Trang chủ
Giới thiệu
Giới thiệu Bệnh viện
Ban giám đốc
Giới thiệu khối Văn Phòng
Sơ đồ tổ chức Bệnh viện Bãi Cháy
Tour tham quan 360
Chuyên khoa
Khối Ngoại
Khối Nội
Khối Cận Lâm Sàng
Khối Ung Bướu
Khối Phòng Khám
Khối Văn Phòng
Chuyên khoa
Khối Ngoại
Khoa Ngoại Tổng Hợp
Khoa Chấn Thương Chỉnh Hình
Khoa Phụ Sản
Khoa Phẫu Thuật - Gây Mê Hồi Sức
Khoa Răng Hàm Mặt
Khoa Tai Mũi Họng
Khoa Mắt
Khoa thần kinh lồng ngực
Khối Nội
Khoa HSTC và Chống Độc
Khoa Nội Tổng Hợp
Khoa Nội Hô Hấp
Khoa Bệnh Nhiệt Đới
Khoa Nhi
Khoa Tim Mạch
Khoa YHCT
Khoa Thần Kinh - VLTL - PHCN
Khoa Thận Lọc Máu
Khoa Quốc Tế Và Yêu Cầu
Khoa nội tiêu hóa
Khoa LKCXK
Khối Cận Lâm Sàng
Khoa Vi Sinh
Khoa Huyết Học - Hóa Sinh
Khoa CDHA
Khoa TDCN
Khoa Giải Phấu Bệnh
Khoa KSNK
Khoa Dược
Khoa Dinh Dưỡng
Khối Ung Bướu
Khoa HSTC Ung Bướu
Khoa Xạ Trị và Y học Hạt Nhân
Khoa Ung Bướu 1
Khoa Ung Bướu 2
Khối Phòng Khám
Khoa Khám Bệnh - Cấp Cứu
Phòng Khám Yêu Cầu
Đơn nguyên cấp cứu
Tin tức
Tin tức - sự kiện
Bệnh thường gặp
Tuyển dụng
emagazine
Đào tạo nghiên cứu khoa học
Đề án cải tiến chất lượng
Quản lý chất lượng
Quản lý chất lượng
Thời sự y khoa
Dịch vụ y tế
Dịch vụ khám sức khỏe
Khám và Điều trị ung thư đa mô thức
Khám vào phẫu thuật ngoại khoa
Khám và phẫu thuật sản - nhi
Dành cho khách hàng
Dịch vụ công
Hướng dẫn khám bệnh
Bảng giá dịch vụ
Thủ tục hành chính
Quy trình hành chính
Cổng dịch vụ công tỉnh
Quy trình chuyên môn
Danh sách người thực hành KCB
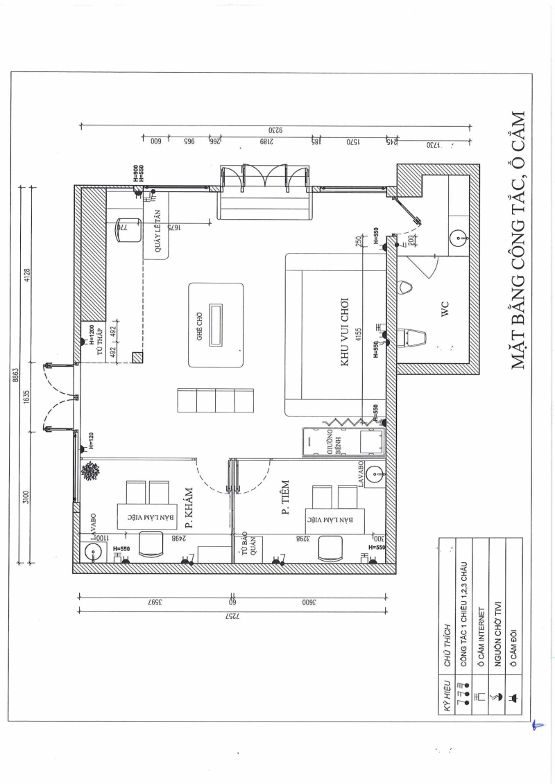
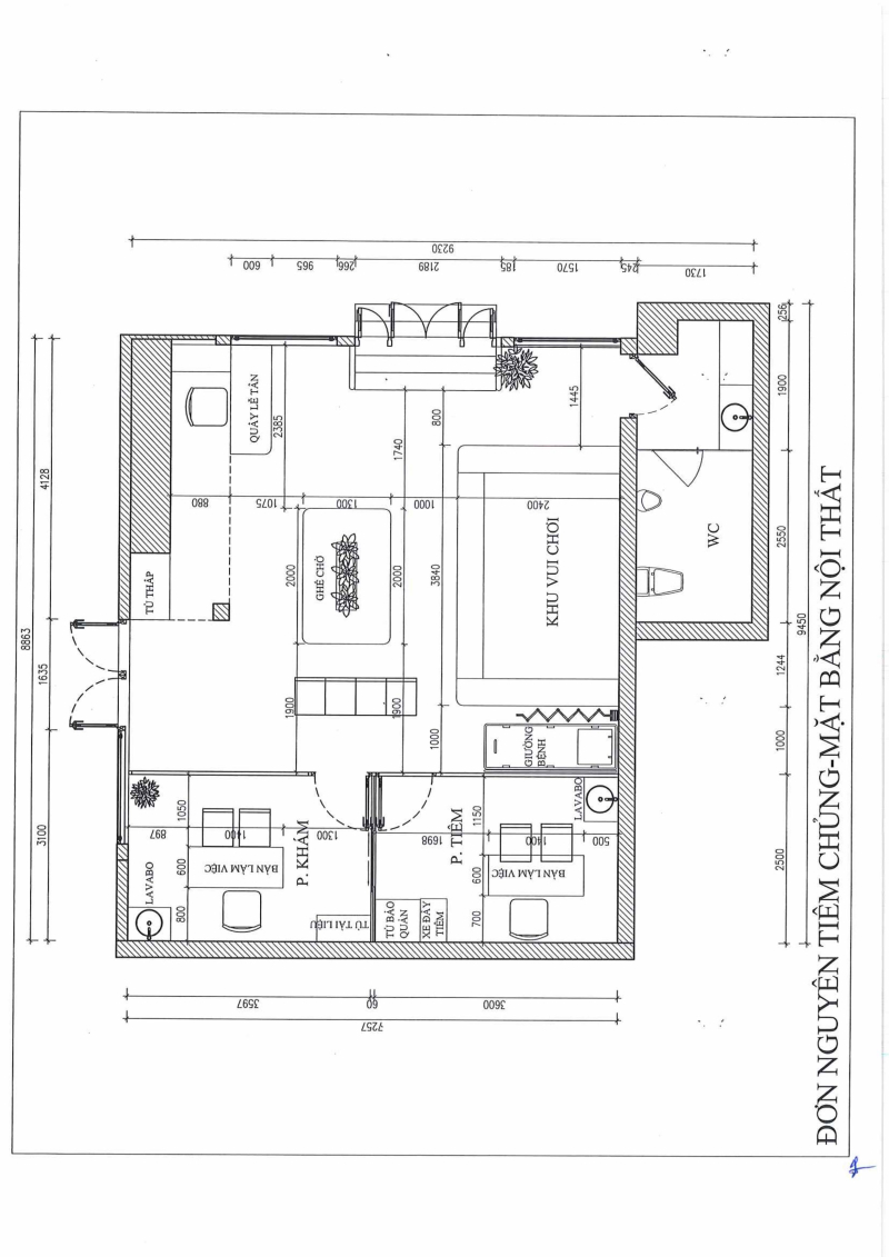
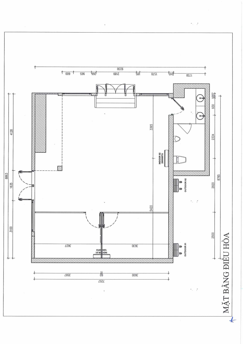
Thông báo số 582 về nhu cầu thực hiện gói thầu sửa chữa Đơn nguyên tiêm chủng khoa Nhi
Hôm nay 06:26
Các bài viết khác
Thông báo số 588 về nhu cầu mua bơm mới thay thế bơm cũ hỏng khu khám bệnh yêu cầu
Thông báo số 582 về nhu cầu thực hiện gói thầu sửa chữa Đơn nguyên tiêm chủng khoa Nhi
Thông báo 574 nhu cầu mua sắm thiết bị nước và điều hòa
Thông báo 573 nhu cầu thiết kế giao diện, thuê hosting lưu trữ cho website truyền thông